


































275 Detroit Amsterdam
De Oostelijke Handelskade maakt deel uit van een omvangrijk IJ-oeverproject. In januari ’97 werd Christian Rapp gevraagd om voor het zogenaamde compartiment E, waar Nieuw Amerika deel van uitmaakt, een gedetailleerd stedenbouwkundig plan te ontwikkelen. Een aantal stedenbouwkundige randvoorwaarden en architectonische spelregels werden opgesteld, die de globale opzet van het gebouw in grote mate hebben bepaald.
De voorgeschreven bebouwingsgrenzen dienden maximaal benut te worden om het aanzienlijke programma van eisen te kunnen realiseren. Voor de hoogteontwikkeling werd een beroep gedaan op de ‘zoning-law’ systematiek. Naast de maximaal toelaatbare bouwhoogte werd ook een minimaal te verwijderen percentage bouwmassa aangegeven. Een principe dat werd toegepast in het New York van de jaren ’30, waarbij zo een maximale gebouwenveloppe werd vastgelegd die voldoende garantie moest bieden voor de daglichttoetreding van ieder gebouw afzonderlijk. Het te verwijderen percentage bouwmassa is op een zodanige manier opgegeven dat een aantal stedenbouwkundige uitgangspunten, zoals de continuïteit van de havenkarakteristiek, gewaarborgd blijven. Het plan beoogt een wand: een aaneengesloten wand aan de IJ-zijde, als een nieuw havenfront; een object: aan de zuidzijde heeft het gebouw meer het karakter van een object; en een plint: de bebouwing wordt per compartiment op een verhoogde plint geplaatst.
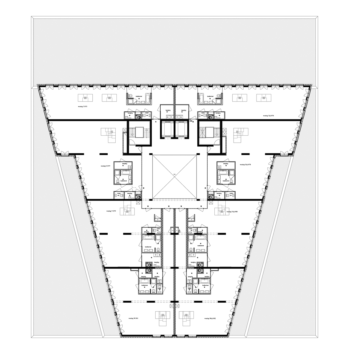
Al bij aanvang was er een duidelijke vraag naar een duurzaam gebouw. Duurzaamheid in de zin van lange duur. Een ecologisch bewustzijn, zichtbaar bescheiden op een discrete manier als integraal concept in praktijk gebracht. De ontwikkelingscombinatie formuleerde reeds in haar plan van aanpak “Loft Living on the Urban Edge”, de ambitie voor de ontwikkeling van een gemengd woon-, werk- en verblijfsmilieu voor een breed spectrum van gebruikers. Er werd uitgegaan van een casco-filosofie, een duurzame bebouwing die door een hoge mate van functie-neutraliteit een veranderbaar gebruik moet kunnen opvangen. De draagstructuur en de huid van het gebouw zijn zodanig ontworpen dat slopen de eerste 400 jaar niet aan de orde is. Slopen is niet duurzaam. Het casco als intelligente ruïne is de sleutel tot duurzame gebouwen; ontworpen voor vele volgende bestemmingen en gebruikers, met een programma van eisen voor de huidige bestemming als alibi.
De bestemde ruimten werden daarom voorzien van overmaat, zowel in oppervlakte als met betrekking tot de verdiepingshoogte. De ontsluiting is een gemeenschappelijke ruimte van het geheel, met een hoge kwaliteitsambitie. Het atrium, hart van het gebouw, werd volledig beglaasd. Zowel kunstlicht, een notie van daglicht als indirect licht vanuit de ruimten die via het atrium worden ontsloten, zullen het specifieke karakter versterken.
-
opdrachtgever
OCNA Ontwikkelingscombininatie, Vesteda Nieuw-Amerika
projectteam
bOb Van Reeth, Christine de Ruijter, Peter Van doninck
periode
1999-2005
programma
Commerciële ruimtes in de plint, 100 loftappartementen en ondergrondse parkeergarage.
Gerelateerde projecten