 
 
 
 
 
 
 
 
 
 
 
 
 
 
 
492 Overpoort Gent
Het project omvat de renovatie van het gebouw ‘Octopus’ tot een shoppingmall en de nieuwbouw van studentenkamers met bijbehorende voorzieningen. Het terrein ligt op de hoek van de straten Stalhof en Overpoortstraat, midden in het uitgaansgebied van Gent. Het bestaande gebouw ‘Octopus’, dat dateert uit 1971, huisvestte voorheen een studentenrestaurant. Na sluiting van het restaurant is besloten om het gebouw te renoveren, zodat het optimaal ingevuld kan worden met nieuwe (commerciële) functies die aansluiten op de studentendoelgroep. Achter en deels op het bestaande gebouw wordt een uitbreiding voorzien voor studentenhuisvesting. De omgevingsaanleg wordt afgestemd op de architectuur, geleiding naar de diverse toegangen gebeurt door middel van trappartijen en luifels.
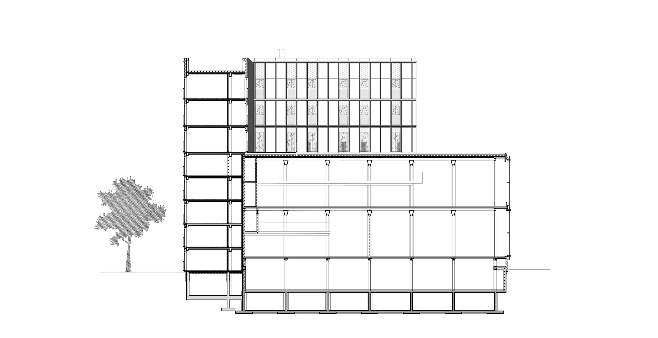
Het bestaande gebouw omvat 3 bouwlagen met verschillende verdiepingshoogten; een kelderverdieping van 4 meter en twee bovengrondse verdiepingen van 6 meter, beide met een duplex-onderverdeling. De winkeleenheden zijn gegroepeerd rond een centrale ruimte die over de volledige hoogte van het gebouw loopt. Er is een hoofdingang voorzien aan de Overpoortstraat. Daarnaast wordt een Engelse koer gemaakt op de hoek Stalhof / Overpoortstraat. Deze koer wordt via een trap over de volledige breedte aan de zijde van de Overpoortstraat bereikt. Vanaf de koer wordt de winkelruimte op kelderniveau ontsloten. Een tweede toegang tot het gebouw aan de Stalhofzijde loopt via een verhoogd terras dat uitkijkt over de Engelse koer. Bevoorrading van de winkeleenheden vindt plaats via een loskade aan de zijkant van het gebouw.
In een autonoom nieuwbouwvolume, dat tegen het bestaande gebouw wordt geplaatst, worden circa 120 wooneenheden gerealiseerd in drie groottes, aangevuld met gemeenschappelijke voorzieningen: leefkeukens, sanitair en terrassen op het dakniveau van het bestaande gebouw. De nieuwbouw bestaat uit acht bovengrondse residentiële bouwlagen, waarvan de bovenste drie deels over het bestaande gebouw zijn gezet. De fietsenstalling en een aantal technische ruimten zijn ondergebracht in een ondergrondse bouwlaag.
Het bestaande plan is opgebouwd volgens een raster van 5x5 meter dat wordt overgenomen in de nieuwbouw. Dit raster wordt doorgetrokken in de architectuur en zorgt voor ordening van de gevels. De gevels van het gebouw zijn opgebouwd uit horizontale en verticale profielen die samen een grid vormen, dat een relatie heeft tot het kolomraster van het gebouw. De steeds verdere verfijning van het grid resulteert in een slank, verticaal en licht volume. De materialisatie van de gevels borduurt voort op de architectuur van het bestaande gebouw, maar voegt hier een eigentijdse interpretatie aan toe. Er is gekozen voor blank geanodiseerde aluminium profielen waaruit de rasterstructuur opgebouwd wordt. De invulling van deze structuur gebeurt door middel van glas, verlichte vitrines voor publiciteit en een hoogwaardige vezelcementplaat. De sokkel van het bestaande gebouw heeft een meer solide materialisatie met prefab betonpanelen.
-
opdrachtgever
Wereldhaven Belgium SCA
projectteam
Ilse Van Berendoncks, Filip Delanghe, Theo van de Beek
periode
2008-2015
programma
Renovatie studentenrestaurant en winkelruimte (4.777 m²) en nieuwbouw studentenhuisvesting (4.568 m²).
Gerelateerde projecten

